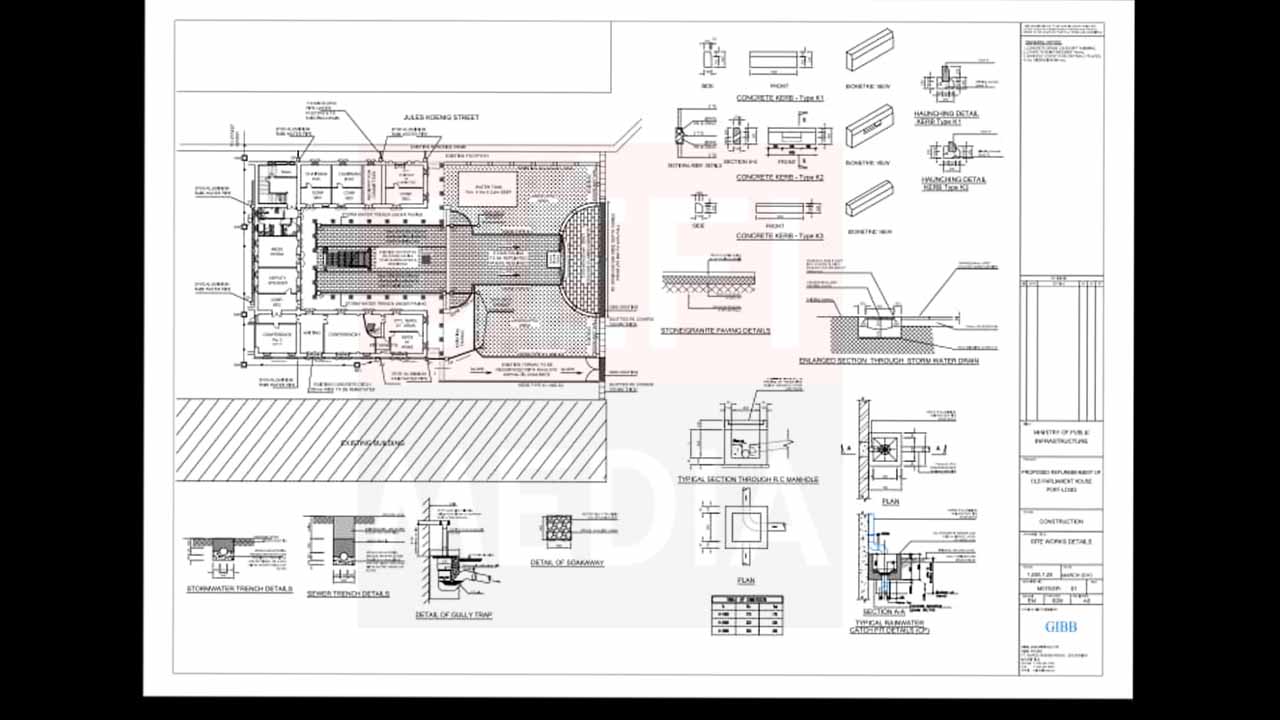
Ireko, filiale du groupe BAI, n’a jamais entrepris des travaux de rénovation sur le bâtiment abritant le Parlement. RadioPlus a obtenu les plans des travaux de rénovation de la Old Parliament House soit l’Hôtel du gouvernement. Ces plans indiquent que l’hémicycle ne figurent pas parmi les plans. Mercredi soir lors d'une fonction à Belle-Vue, le Premier ministre a soutenu que la firme de construction Ireko, appartenant à l’homme d’affaires Dawood Rawat, avait décroché un contrat de Rs 350 millions en 2011, donc sous l’ère travailliste, pour rénover l’Hôtel du gouvernement et le Parlement.
Dans une déclaration diffusée sur Radio Plus jeudi 15 novembre, Dawood Rawat a affirmé que les travaux de rénovation concernaient la Old Parliament House, soit l’Hôtel du gouvernement. Et d'ajouter que : « c’est complètement faux de dire que nous avons rénové le bâtiment abritant le Parlement ».





Notre service WhatsApp. Vous êtes témoins d`un événement d`actualité ou d`une scène insolite? Envoyez-nous vos photos ou vidéos sur le 5 259 82 00 !

